Vez River Spa

In harmonie met de context

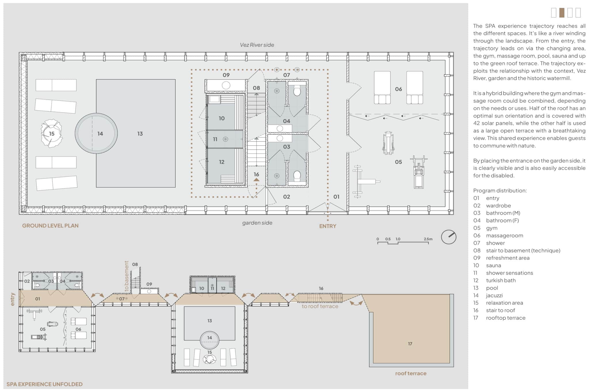
"...bezoekers beleven een unieke wellness ervaring terwijl ze door de SPA dwalen langs alle verschillende ruimtes. Het is als een rivier die door het landschap heen slingert..."

Voor een internationale architectuurprijsvraag is een ontwerp gemaakt voor een wellnessresort in Portugal. Het project stond op de shortlist voor de beste inzendingen. Het was de enigste Nederlandse inzending die de shortlist heeft gehaald.

Gelegen aan de rivier de Vez en naast een gastenverblijf met een historische gerestaureerde watermolen, kijkt de spa uit over het vredige groene landschap dat kenmerkend is voor deze regio in Noord-Portugal. De inspiratie is te vinden in de meanderende rivier de Vez, de natuurlijke omgeving en het aangeboden programma.

Bezoekers beleven een unieke wellness ervaring terwijl ze door de SPA dwalen langs alle verschillende ruimtes. Het is als een rivier die door het landschap heen slingert. Vanaf de entree leidt het traject via de kleedruimte, de fitnessruimte, de massageruimte, het zwembad, de sauna en omhoog naar het groene dakterras met een overweldigend uitzicht op de rivier en de watermolen. Hier voelen gasten zich volledig omringd door het landschap.

Het is een hybride gebouw waar de fitnessruimte en de massageruimte gecombineerd kunnen worden, afhankelijk van de behoeften of het gebruik. Het dak wordt gebruikt als een groot open terras met een adembenemend uitzicht. Deze gedeelde ervaring stelt gasten in staat om één te zijn met de natuur. Verticale houten vinnen (verwijzend naar de omringende bomen) en horizontaal geplaatste stenen (verwijzend naar de rivier) geven ritme aan de gevels van het gebouw. ​​Verspringende houten glaspanelen geven gasten een andere beleving van de omgeving, variërend in transparantie en privacy.

Internationale prijsvraag
Wellnessresort
2025
Status: Internationale prijsvraag
Typologie: Wellnessresort
Jaar: 2025